Проектирование террас

Терра́са (фр. terrasse) - горизонтальная площадка, ограниченная уступом
проектирование террас
Террасы по своей сути и функциям очень близки к понятию "малая архитектурная форма", но являются более сложным и масштабным объектом. Проект террасы разрабатывается отдельно и не входит в основной Проект Благоустройства.

Обычно террасы строятся на участках с уклоном, где невозможно обычным образом разместить какую-либо площадку.

Террасы могут состоять из нескольких уровней и быть выполнены из самых разнообразных материалов: начиная от кирпича и бетона, и заканчивая деревом и стеклом.

Терраса - отличное дополнение к основной идее вашего ландшафтного дизайна.


Что войдет в проект террасы?

1. Эскизный проект террасы

Мы разрабатываем и предлагаем для обсуждения 2-3 варианта эскиза, выполненных в трехмерной проекции.

После внесения изменений в промежуточные версии согласовываем итоговый эскиз, который будет прообразом будущей террасы.


2. Выбор и расчет конструкции террас

Любая терраса состоит из следующих конструктивных частей:

🔩 Фундамент и опорная конструкция

  • Опорные столбы
  • Бетонные фундаменты
  • Винтовые сваи
  • Регулируемые опоры
  • Несущие балки (ростверк)
опорная конструкция

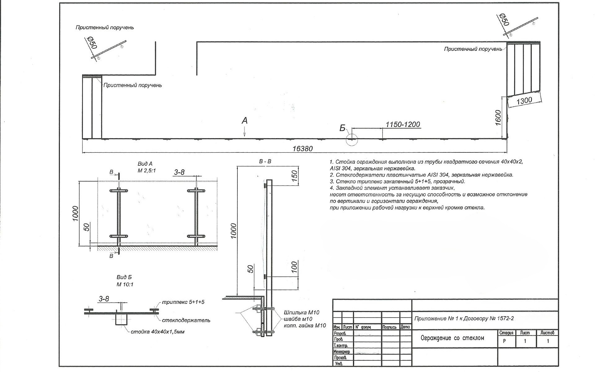
3. Выпуск рабочей документации

В зависимости от технического задания и сложности конструкции выпускаются соответствующие листы Рабочей Документации.


Примеры наших работ

Терраса перед баней

Эскиз и визуализация

Рабочая документация

Ход работ и результат строительства террасы перед баней.


Терраса на набережной

Эскиз и визуализация

Рабочая документация

Ход работ и результат строительства террасы на набережной


"Приземленная" терраса

Эскиз и визуализация

Ход работ и результат строительства "приземленной" террасы


Посмотрите строительство террасы на набережной.

Цена проекта террасы / многоуровневого дека
Вид работ (услуг)
Цена
Вид работ (услуг)
Эскиз террасы в 3D (SketchUp), 2 варианта, согласованное решение

Рабочий проект, технологические разрезы, спецификация материалов
от 40 000 рублей

от 50 000 рублей

Терраса на набережной

>
Получить консультацию
Получить консультацию
Наш ведущий специалист с удовольствием ответит на все Ваши вопросы
ФИО*
Поле обязательное для заполнения
Номер телефона*
Поле обязательное для заполнения